サンヨーホームズ

サンヨーホームズ株式会社

戻る

認可保育園(大阪府)

事業主さまとオーナーさまが協力して
小規模保育事業で地域の子育てを応援

認可保育園 外観
待機児童の解消に役立つ小規模保育事業を手掛けるMさまは、事業に賛同するオーナーさまの協力のもと保育園を新設。「市の認可事業でもあり、きちんとした建物が大前提です」。そう語る園舎は閑静な住宅地に馴染むとともに、約12kWの太陽光発電を搭載するなど環境性と経済性も兼ね備えています。

部屋ごとに異なる壁紙で温かみや楽しい雰囲気を演出。お子さまの多様なリスクを想定し、充実した安全対策も。

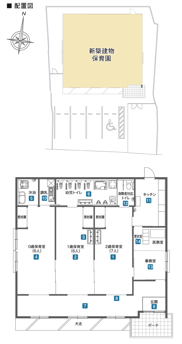
園児数の定員が19名と少なく、マンツーマンに近い保育ができる小規模保育園の利点を最大限に活かせるよう、0歳児・1歳児・2歳児の各部屋はゆったりとした広さとスムーズな動線に配慮。 それぞれにテーマカラーを設けて楽しい雰囲気を演出すると同時に、全体を一体感ある空間としても使えるように工夫しました。 ゆとりある廊下は、お子さまたちのお遊戯スペースにもなっています。
  • 2歳児保育室
    オレンジ色の壁紙やカラーボックスが、温かみのある雰囲気を醸し出す2歳児保育室。 すべての園児室に採用している木目調の床材は、抗菌性を備えるとともに、適度なクッション性を持たせることで、万一お子さまが転んでもケガをしにくいように配慮しました。
  • 2歳児保育室
    床暖房にも対応しており、冬も素足で気持ち良く走り回れます。 ほかにも、壁のコーナー部分に丸みを持たせて危険を減らしたり、コンセントをお子さまの手が届きにくい高さに設計したり、快適性だけでなく安全対策も徹底しました。
  • 1歳児保育室、手洗い台
    1歳児保育室はグリーンの壁紙で爽やかな印象に。合同保育などの際には、隣り合う部屋と仕切る引き戸を開放するとひと続きの空間にも変身。
  • 0歳児保育室
    優しいピンクが0歳児保育室のテーマカラー。広めに設けた窓からの光も相まって明るく居心地の良い空間です。この部屋を含めて、園児室にはそれぞれ大きめの収納を併設しているのもポイント。布団やおもちゃなどをすっきりと片付けられるため、部屋が圧迫されることなく最大限に活かせます。
  • 手洗い台、沐浴室
    1歳児保育室と2歳児保育室には、使いやすいシングルレバー水栓の手洗い台を設置。1歳児保育室は壁紙と同系色のグリーンの腰壁で彩りました。 0歳児保育室の奥に併設した沐浴室。ソフトなピンクの床とモザイク柄の壁紙で変化を付けています。
  • 玄関ホール
    ガラス張りの玄関扉から光があふれる玄関ホール。安全性を重視した段差のないフラット設計と、スムーズな動線を実現するシンプルな空間構成が特徴です。
  • 廊下、園児室の扉
    南向きの掃き出し窓3 面から爽やかな光が入る廊下。森をイメージして木の柄の壁紙を採用。 園児室の扉は指詰め防止の工夫を施しました。
  • 園児用トイレ
    園児用のトイレはゆったりと確保。キャラクター柄の壁紙で楽しい雰囲気に仕上げました。
  • 調乳室、ご家族やスタッフ用のトイレ
    IH調理器付きミニキッチンを設けた調乳室。 ご家族やスタッフ用のトイレは、体が不自由な方でも利用しやすいバリアフリー仕様です。
  • 調理室
    給食は専任スタッフが調理。事業主さまの既存の保育園は調理室が手狭だったため、スペースに少しゆとりを持たせました。
  • 事務室
    更衣室や医務室の機能も兼ねた事務室。仕切り壁を設けないことでゆったりとした空間が生まれました。
  • 芝生コーナー
    前庭に緑の潤いを添える芝生コーナーを設置。園児たちも安心して遊ぶことができます。
  • 玄関、防犯カメラ
    閉鎖的にならないよう玄関はガラス張り。外壁にはオレンジ色のアクセントをつけました。 エントランスには防犯カメラを完備。電子ロックの門扉と併せて安全を見守ります。
敷地配置図、平面図
戻る 土地活用TOPへ戻る